Die Stadt Basel hat beschlossen eines ihrer ehemaligen Verwaltungsgebäude in ein Wohnhaus für Klein- und Kleinsthaushalte umzuwandeln. Bei der Suche nach einer Antwort auf die Frage, wie diese Umwandlung sozial nachhaltig gelingen kann, begleitete ich das Architekturbüro Balissat Kaçani.
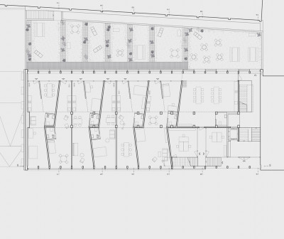
Eine besondere Herausforderung des Projekts bestand für die Architekten und mich darin, dass in dem Bauwerk neben Wohn- auch Arbeitsräume Platz finden sollten. Damit diese Mehrfachnutzung keine Konflikte zwischen Arbeits- und Privaträumen produziert, setzten wir uns zum Ziele, ein multifunktionales Gebäude zu schaffen, das den zukünftigen Bewohner:innen als privater Rückzugsraum als auch Arbeitsstätte und Ort des Austausches dienen kann. Eine zweite Herausforderung stellte die sehr heterogene Zusammensetzung der zukünftigen Bewohner:innen und Nutzer:innen des Gebäudes dar. Sozialwissenschaftliche Studien zeigen nämlich, dass sich die unterschiedlichsten Gruppen von Menschen für Kleinstwohnungen interessieren. Darunter befinden sich Pensionist:innen und „Neue Kreative“ genauso wie Studierenden, Migrant:innen mit geringem Einkommen und Personen, die aufgrund einer sich verändernden familiären Situation (Trennung, etc.) gezwungen sind, alleine zu leben. Bei der Ausarbeitung ihres Beitrages für den Architekturwettbewerb der Stadt Basel unterstützte ich die Architekten dabei heterogenen Lebens- und Arbeitsraum zu schaffen, der sowohl Platz für die Bedürfnisse von Individuen und unterschiedlichen Gruppen als auch für gemeinschaftliche Aktivitäten bietet. Dazu gehören verschiedene Wohnungstypen genauso wie Gemeinschaftsräume und Orte, an denen Hand- wie auch Kopfarbeit durchgeführt werden kann
-
Bild: Balissat Kaçani -
Bild: Balissat Kaçani -
Bild: Balissat Kaçani -
Bild: Balissat Kaçani -
Bild: Balissat Kaçani -
Bild: Balissat Kaçani